Locale commerciale in Affitto
Cisterna di Latina
Codice: A/A1130
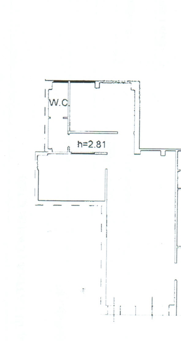
Cisterna di Latina: in zona Collina dei Pini, proponiamo in Affitto Locale commerciale in ottimo stato di mq 60 circa posto al piano terra rialzato. L'immobile si compone di ampia stanza con reception, due grandi stanze, antibagno e bagno. Ottimo per qualsiasi tipo di attività. Ottime rifiniture, predisposizione aria condizionata, predisposizione cavi online.
Il costo della locazione è di € 450,00 (compreso condominio)
APE CLASSE E.
€ 450
Classe energetica
E
Informazioni immobile
Codice A/A1130
Contratto Affitto
Tipologia Locale commerciale
Regione Lazio
Provincia Latina
Comune Cisterna di Latina
Prezzo € 450
Totale mq 60 mq
Bagni 1
Locali 4
Stato conservazione Buono
Mq coperti 60 mq
Arredato Non arredato
Posizione Periferica
Ubicazione immobile




















